Oggi vi mostreremo due soluzioni in pianta per progettare una cucina con portale: la prima lineare e la seconda con l’inserimento dell’isola.
Ma prima un passo indietro…
Che cos’è una cucina con portale?
Per cucina con portale si intende una disposizione di arredo in cui le colonne incorniciano la zona operativa, collocandola come all’interno di una nicchia.
Questa progettazione è molto attuale e rende la composizione efficace e ordinata.

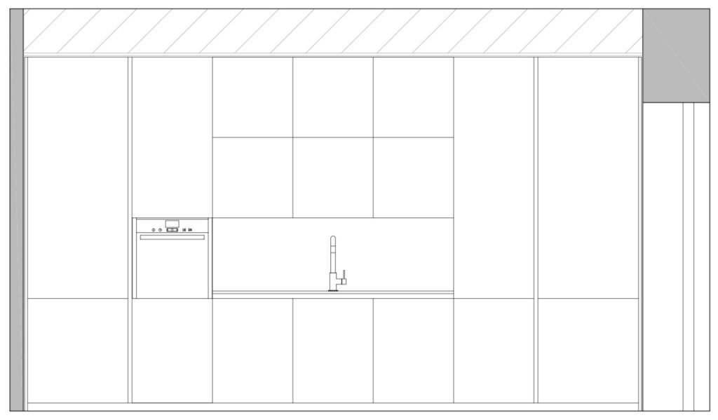
Soluzione 1 – cucina con portale lineare

Nella prima soluzione la cucina è proposta tutta su un’unica parete e quindi all’interno delle colonne vediamo inserirsi la zona lavaggio, nonché la zona cottura.

In questo primo caso abbiamo scelto di dedicare due spazi colonna alla dispensa e separare le colonne frigo e forno.
Soluzione 2 – cucina con portale con isola

Nella seconda soluzione, invece, all’interno della nicchia creata dal portale vediamo inserirsi solamente la zona lavaggio, la zona cottura si sviluppa infatti sull’isola in centro stanza, che ospita anche un bancone uso snack.


Come prima, la cucina si completa tramite l’uso di quattro colonne, disposte in modo simmetrico: da un lato dedicate a dispensa e forno, dall’altro dedicate al freddo, quindi congelatore e frigo.
Queste sono alcune delle soluzioni da noi progettate.







Devi progettare la tua nuova cucina?
Contattaci:
ZETA CONCEPT
Via Monginevro, 284, Torino
Tel. 011 0196413
info@zetaconcept.it









